您當前的位置:首頁 >> 技術 >> 管材與型材擠出 » 正文
大型擠壓造粒機組水下切粒裝置切刀前進壓力的設定
  瀏覽次數:7101  發布時間:2018年07月10日 17:14:31
[導讀] 摘要:闡述大型擠壓造粒機組水下切粒裝置的工作機理,刀軸前進的多種方式,并分析了刀軸前進及正常工況下的受力情況。提出如何精準設定刀軸前進壓力,延長設備使用周期。
 
摘要:闡述大型擠壓造粒機組水下切粒裝置的工作機理,刀軸前進的多種方式,并分析了刀軸前進及正常工況下的受力情況。提出如何精準設定刀軸前進壓力,延長設備使用周期。
關鍵詞:大型擠壓造粒機組;水下切粒裝置;切刀;模板;刀軸前進壓力
 
乙烯是發展合成樹脂、合成橡膠、合成纖維的基礎原料。乙烯制備能力是綜合衡量一個國家石化工業水平的重要標志。“十五”以來,我國石化行業乙烯工業已經進入了快速發展的新時期,并已成為世界乙烯工程的重要組成部分。
大型擠壓造粒機組是百萬噸乙烯工程不可或缺的核心裝備,我國大型擠壓造粒機組絕大多數依賴進口。目前世界上生產大型擠壓造粒機組的公司有日本神戶制鋼所(KOBELCO)、日本制鋼所(JSW)和德國科倍?。–WP)等,目前國內正在服役的大型擠壓造粒機組約上百臺套。
 
1.水下切粒裝置的結構及切粒機理
水下切粒裝置是整個機組的關鍵部件之一,其中刀軸進退壓力的給定直接影響到模板、切刀的使用壽命及機組的穩定長周期運行。對水下切粒裝置刀軸進退壓力給定的討論意義重大。
水下切粒裝置主要組成部分包括熱水室、刀盤、軸承箱、水室快速鎖緊機構、刀軸移動機構、移動小車、聯軸器、驅動電機等。其水下切粒裝置的機理均為由驅動電機通過聯軸器帶動切刀軸轉動,完成切粒動作。在刀軸的前后移動上各公司產品略有差異,原理均為通過汽壓、汽液或液壓驅動執行機構完成刀軸的前進后退。
切粒有兩種方法,一種為“間隙式”切粒,即切刀和模板之間設有一定的間隙。當切刀軸前進時,切刀軸處于一個固定的位置(通過手柄桿設定),即無論切刀磨損及切刀轉速如何,切刀和模面的相對位置保持不變。另一種為“接觸式”切粒,即切刀和模板之間沒有間隙。當驅動切刀軸前行的推力增加并超過某一特定值時,切刀軸將克服幾個阻力,向模板靠近。一旦切刀接觸模板的壓力設定完畢,即切刀轉速及刀軸前進的壓力設定后,無論切刀磨損如何,切刀(軸)都會保持與模板之間的這個壓力。通常“接觸式”切粒的粒料效果會更好一些。如圖1所示。
 
圖1切粒的兩種型式
 
刀軸的和力作用在切刀上,切刀給模板的壓力對切刀壽命及粒料形狀影響很大。
 
2.切刀軸前進及工作中受力分析
切粒裝置中刀軸前進未設任何其他機械限位,除非刀軸前進達到最大行程。在切粒裝置運行過程中,所有施加給切刀軸的推力最后都由切刀刀刃承受,而切刀又與模板接觸,因此,刀軸前進的和力如果過高,會導致切刀及模板過度磨損,影響切刀及模板的使用壽命。
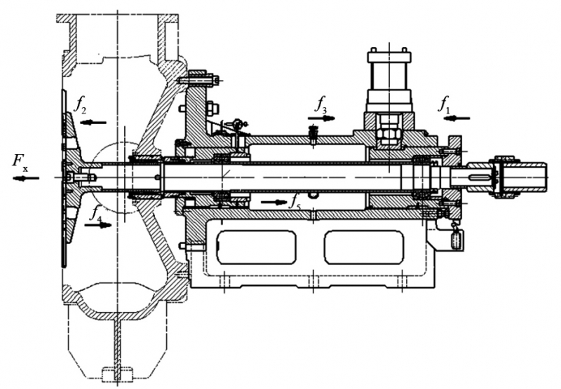
反過來,刀軸前進的和力如果過低,就會導致上述的“間歇式切粒”,從而有可能會導致尾料及連料等的產生,影響產品質量。刀軸受力如圖2所示。
 
圖2刀軸受力示意圖
 
切粒開始后,切刀軸至模板的推力即刀軸的和力(Fx)等于:
Fx=f1+f2-(f3+f4+f5)
式中:f1為刀軸前進力,如果調節切粒速度,該壓力也需調節;f2為水室內的粒子水對切刀的推力(取決于切粒速度);f3為刀軸前進的背壓力。(通常是一個恒定的壓力,各廠家不同);f4為水室內的粒子冷卻水的壓力(背壓);f5為機械阻力損失等(與刀軸運動方向相反)。
f1為刀軸前進的主動力,它會隨切粒機刀軸轉速的變化而調節;f2水室內的粒子水對切刀的推力,它會隨切粒機刀軸轉速的增加而增大,f3背壓為設定值;f4水室內的粒子冷卻水的壓力,視為固定值;f5刀軸的前進阻力,切粒系統確定后,機械阻力已確定,視為固定值。
當切粒電機啟動后(在粒子冷卻水中驅動切刀軸),切刀與水產生向前的分力,切刀會自動靠近模板。而且推力(f2)會隨切刀轉速的增加而增大。
 
3.切刀軸各分力的討論
對水室內的粒子水對切刀的推力f2的討論。對切刀在水室內的運動情況,利用ANSYS進行流構耦合分析。
在ANSYS流體模塊中對流動入口施加流速,對流動出口施加零壓力邊界條件,與刀接觸面施加交界面邊界條件,施加邊界條件后的模型如圖3、4所示。流構交界面的壓力在ANSYS中對水介質進行流體求解,得到流構交界面的壓力分布如圖5所示,切刀的邊界條件如圖6所示。

圖3水介質的網格劃分
圖4水介質的邊界條件
圖5流構界面的壓力分布云圖
圖6切刀的邊界條件
 
定義材料參數,進入ANSYS中利用常規求解器進行求解。
結果分析:切刀所受到水的Y向壓力與水流速的平方成正比,曲線如圖7。
即:f2=n×k×L×V2
式中:k為系數;L為切刀的有效長度;V為切刀的線速度;N為切刀數量。
圖7切刀軸轉速與f2的曲線圖
 
可見f2的大小與切刀軸的轉速的提升成平方的關系增大,在實際的操作中不可忽視它的存在。
在切粒裝置運行過程中,切刀與模板產生磨損,切刀與模板都會磨損,因切刀的硬度低于模板造粒帶的硬度,磨損時切刀會磨損多一些。為了補償切刀及模板磨損量,切刀軸需向前推進,給切刀軸施加指定的壓力,讓切刀與模板良好接觸。刀軸前進力(f1)可以調節,而且應以優化切刀軸至模板的推力(切刀至模板的壓力)為準。
不要施加過高的氣壓使切刀強制靠近模板。為了延長切刀使用壽命,造出良好的粒料,至切刀料筒的氣壓設定是切粒過程中的一個最關鍵因素之一。
 
4.結論
通常在進行生產操作時,剛開機時為了防止??锥驴祝a量設定為總產量的50%~60%,然后隨著慢慢提高產量,切粒機轉速逐漸提高。此時由于切刀轉速增加,切刀軸向前的推力(f2)會成平方關系增大,這時初始開車時的刀軸前進壓力(f1)就需要降低。否則,切刀與模板的壓力(Fx)將會過高,導致切刀及模板造粒帶的快速磨損。
總的來說,磨損量會隨著刀軸的轉速增加而成比例增加。為了減少磨損,將刀軸的前進推力(f1)降低至理想值就非常關鍵。
常規的切刀軸前進推力(f1)與切刀轉速(n)的關系如圖8所示。
圖8切刀軸前進推力(f1)與切刀轉速(n)的關系圖
 
切刀軸前進推力與切刀轉速的關系圖對于切粒機的操作十分重要。如何獲得上述關系圖,一般來說,設備出廠時,設備制造商會提供一個切刀前進力與刀軸轉速的曲線圖,但在機組現場安裝及調試時,會采集現場機組運行數據,對曲線圖進行確認或修訂。如切刀軸前進力f1可自動控制,可將本曲線寫入PLC或DCS中,以便實現切刀軸前進壓力的自動給定。設備使用方可根據現場實際操作人員的經驗及收集的數據對本曲線進行修訂,達到最優效果,從而減少切刀、模板的磨損,延長切刀、模板的使用壽命,使機組穩定長周期運行。